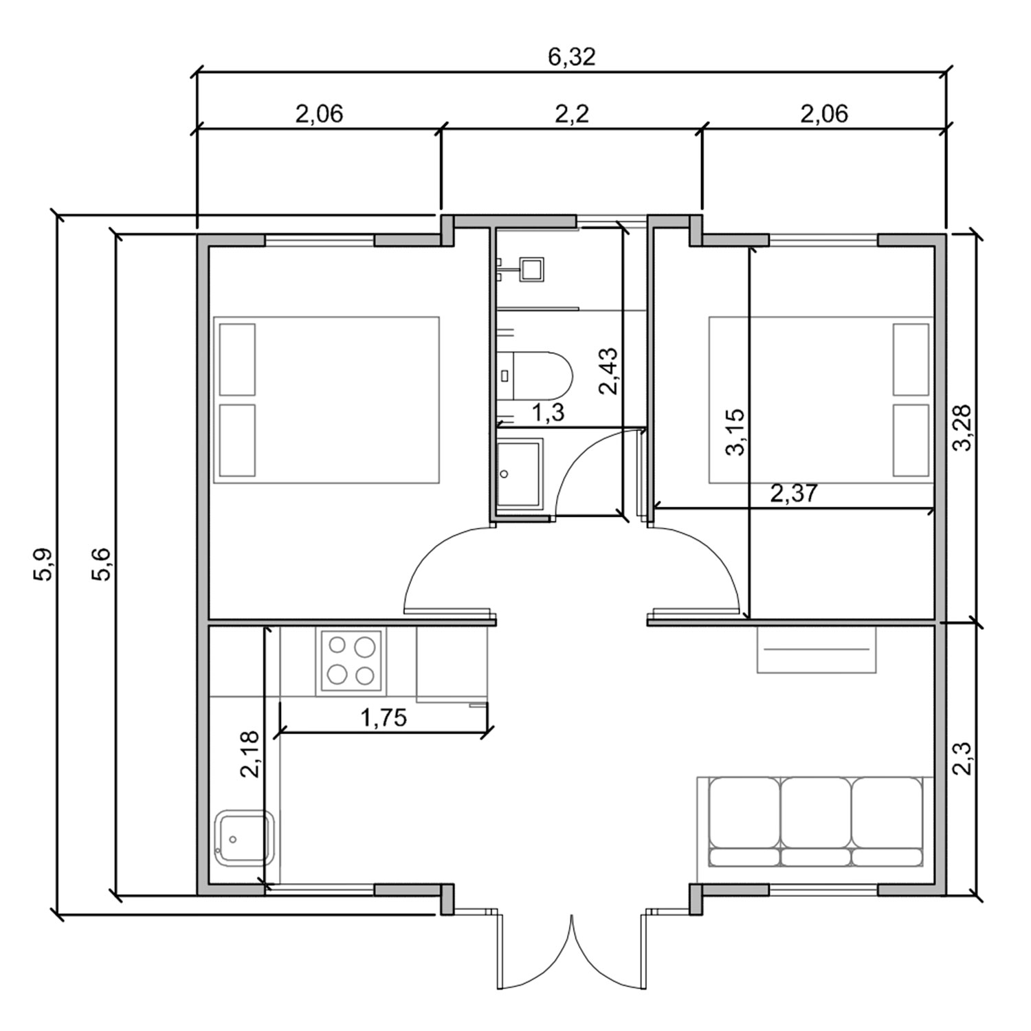
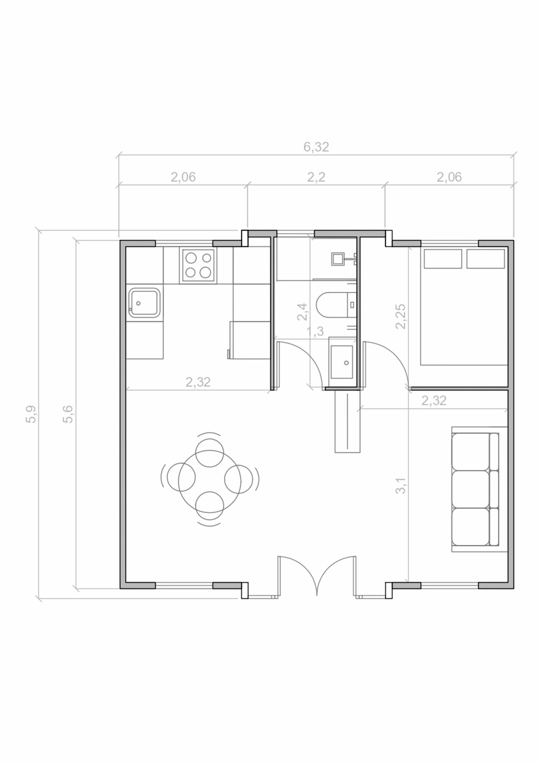
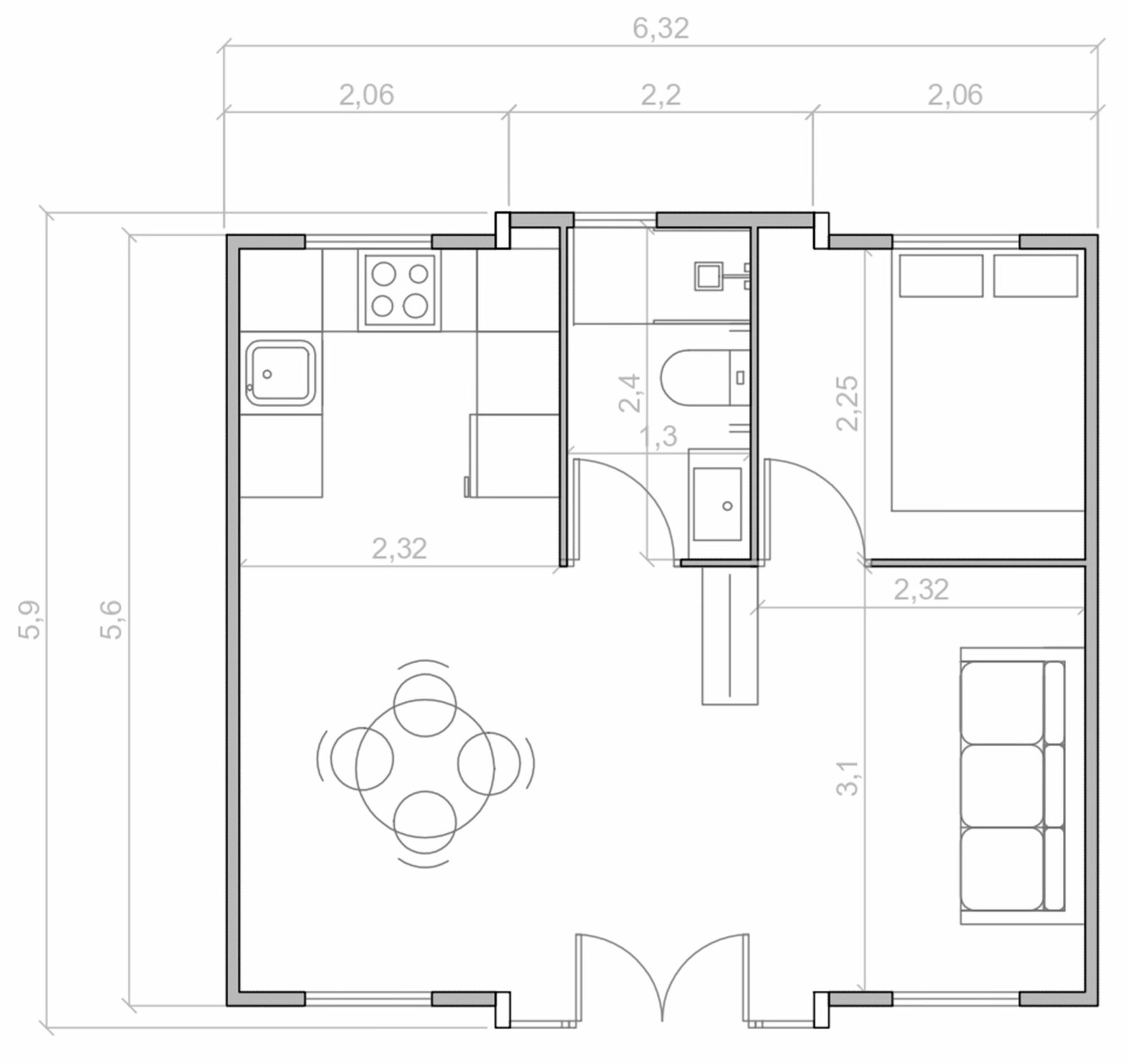
Casa plegable modelo CÁDIZ
36 m²
Todas las instalaciones incluidas
MEDIDAS (m)
EXTERNAS
INTERNAS
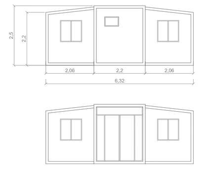
PLEGADA
LARGO
5.90
5.60
5.90
ANCHO
6.32
6.08
2.20
ALTO
2.50
2.20
2.50
PESO: 3000 kg
PESO: 3000 kg
¡ PIDE TU PRESUPUESTO !
Contácta ya con nosotros por teléfono, whatsapp o rellena el formulario y en seguida te mandamos tu presupuesto.
