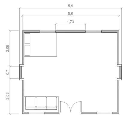
Casa plegable modelo GRANADA
26 m²
Todas las instalaciones incluidas
MEDIDAS (m)
EXTERNAS
INTERNAS
PLEGADA
LARGO
4.82
4.57
5.90
ANCHO
5.90
5.60
0.70
ALTO
2.40
2.20
2.50
PESO: 1850 kg
PESO: 1850 kg
¡ PIDE TU PRESUPUESTO !
Contácta ya con nosotros por teléfono, whatsapp o rellena el formulario y en seguida te mandamos tu presupuesto.
